物件情報
| 年齢制限 | 入居時18歳以上40歳以下 |
| 物件タイプ | 男女混合8人のシェアハウス |
|---|---|
| 契約期間 | 6ヶ月〜2年、条件により再契約可能 |
| 家 賃 | 49,000円/月(バルコニーなし) 50,000円/月(バルコニー付き) |
| 共益費 | 13,480円/月 |
| 共益費には、月々のガス代、電気代、水道代、インターネット接続料、消耗品(京都市専用ゴミ袋・洗濯洗剤・共用部で使用するタオル・トイレットペーパーなど)の費用が含まれます。 | |
| 敷 金 | 30,000円 |
| 退室時に、清掃費用・未払金・現状回復費を差し引いて返却いたします。 | |
| 礼 金 | なし |
| 事務手数料 | 10,000円 |
| 寝具レンタル料(任意) | 8,000円(初回のみ) |
| 自転車レンタル料(任意) | 1,000円/月 |
| 再契約手数料 | 入居日から2年以上経過後の再契約は10,000円、2年以内の再契約は0円 |
| 退室時清掃費用 | 10,000円 |
| 保 険 | 団体保険加入済み(個人賠償責任・借家人賠償責任・入居者自身の家財に対する補償) ※ 追加の保険料は発生しません。補償額についてはお問い合わせください。 |
| 禁 煙 | 敷地内、館内館外とも禁煙 |
| ペット | 不可 |
| 清 掃 | 共用部分は2週間に1回オーナー及びその家族が清掃 その間の週は入居者が当番表に従って清掃 |
| 入居できない方 | 2人以上で入居希望の方 |
| 共同生活に適さないと管理者が判断した方 | |
| 書類審査の結果お断りさせていただく方 ※ お断りさせていただく場合の理由はお伝えしません。どうぞご了承ください。 | |
| 管理スタイル | オーナーまたはその家族が週1〜2日滞在して物件の維持管理・入居者サポートに対応。それ以外の日もWhatsApp, LINE, WeChatで24時間連絡可能。 |
| インフラ | 上下水道・都市ガス・電気・光回線(10Gbps、部屋毎に有線LANポート+Wifiアクセスポイント) |
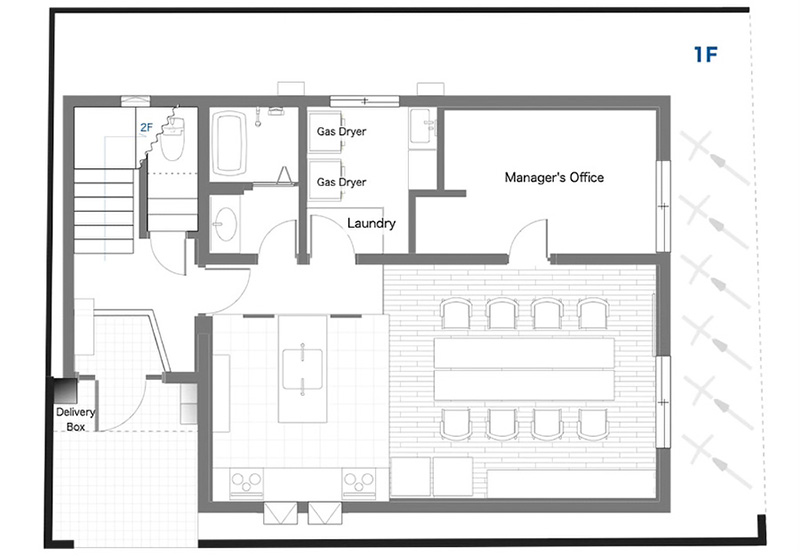
| 間 取 | 個室(8)、LDK、洗濯室、浴室、シャワーブース(2)、トイレ(3)、駐輪スペース(屋外)、管理人室 |
| 駐輪スペース | 有(一人一台駐車可能)無料 |
| エアコン | 各部屋1台 |
| テレビ | リビングにネット配信専用テレビ1台 ※ テレビ放送受信設備はありません。 |
| 駐車スペース | 無(大型バイク1台のみ有料で駐車可 1,000円/月) |
| 所在地 | 〒606-8212 京都市左京区田中里ノ内町113 |
| きょうとし さきょうく たなかさとのうちちょう113 | |
| 交 通 | 京阪本線 出町柳駅 徒歩15分 |
| 叡山電鉄 元田中駅 徒歩1分 | |
| 構 造 | 壁式鉄骨コンクリート造3階建 |
| 築年月 | 1973年11月 |
| 改装年月 | 2025年11月全面改装 |
| 建物面積 | 1階及び2階:70.80m² 3階:68.35m² 延べ:209.95m²(約63.5坪) |
| 担 当 | 横山啓一(オーナー) |
| sns (Instagram) | sharesatolet |
| 最終更新日 | 2026年5月13日 |
初期費用の例 (寝具レンタルなしの場合)
| 初月の家賃 ☆ | 49,000 |
|---|---|
| 初月の共益費 | 13,480 |
| 敷金 | 30,000 |
| 事務手数料 | 10,000 |
| 合計 | 102,480 |
☆バルコニー付きは +¥1,000
間取図
800px.jpg)
800px.jpg)
800px.jpg)
設備の特徴
料理が作りたくなるキッチン

1つのシンクの周りで最大4人が同時に炊事できるアイランド型のステンレス製調理台があります。ゆったりとした広さが確保され、人が集まっていても快適に作業ができます。
3口のIHクッキングヒーター2台を両サイドに配した調理台で同時に数人で使うことができます。
キッチンでの様子
一緒にお料理を作っている様子がよくみられます。




1F 洗濯室
乾燥機能のないドラム式洗濯機が2台、ガス乾燥機が2台あり、これらの機器を最大4人が同時に使用できます。待ち時間を減らすため、最も時間のかかる乾燥には電気式ではなくガス式の乾燥機を設置しています。(すべて無料で使えます。)


1F お風呂 2F・3F シャワー
1階はお風呂をユニットバスに交換し、2階,3階にはシャワーブースを新設しました。3階は女性専用です。





1F・2F・3Fトイレ
3階は女性専用です。







その他の設備
| 共用部分 | 玄関:傘立て、下駄箱 |
|---|---|
| LDK:シンク、IHクッキングヒーター(3口)×2、冷蔵庫×2、 | |
| コーヒーマシーン、電気ケトル×2、トースター×2、電子レンジ×2、 | |
| 炊飯器×4(3合炊き・1合炊き)、ホットプレート、 | |
| IH対応の鍋、IH対応のフライパン、各種調理器具(まな板・お玉)、 | |
| お皿、コップ、お箸、スプーン、フォーク、 | |
| ダイニングテーブル、ダイニングチェア×8、テレビ(ネット配信のみ)、掃除機 | |
| 洗濯室:ドラム式洗濯機×2、ガス乾燥機×2、洗面化粧台 | |
| 1階浴室脱衣室:洗面化粧台 | |
| 2階廊下:掃除機 | |
| 2階洗面脱衣室:洗面器 | |
| 3階廊下:掃除機 | |
| 3階洗面脱衣室:洗面器 | |
| その他の消耗品:京都市専用ゴミ袋、トイレットペーパー、ボックスティッシュ、食器洗剤、洗濯洗剤、食器洗いスポンジ、台拭き、ぞうきん、共用部分の電球、ハンドソープ、共用部分で使用するタオルなど | |
| 専有部分 | 居室はすべてフローリング張りの洋室です。 |
| 全ての居室に空調機・24時間換気扇・ベッド・机・椅子・照明器具・カーテン・クローゼットが備え付けられています。 ※ 寝具は原則として各自でご用意ください。ただし、希望者には貸出致します。 (貸出料:8,000円/年【枕・敷きマット・ボックスシーツ・掛け布団】) ※ 寝具のご購入を希望される場合、必要であればお手伝いさせていただきます。 |
よくある質問
-
管理人さんはいますか?
-
います。常勤はしていませんが、不定期に建物・備品・コミュニティの管理をしています。
-
喫煙は可能ですか?
-
敷地内全面禁煙です。
-
ゴミや掃除など入居者間での当番などありますか?
-
ゴミ捨ては入居者間の1週間ごとの当番制です。
-
消灯時間はありますか?
-
消灯時間はありませんが、23時以降は周囲への配慮をお願いします。
-
シャワールームやバスルームには使用時間制限はありますか?
-
使用時間に特に制限は設けておりませんが、早朝や深夜などの時間帯や混み合う時間には、他の入居者の方へのご配慮をお願いいたします。
-
シャワー・洗濯機・乾燥機は有料ですか?
-
無料です。
-
消灯時間はありますか?
-
消灯時間はありませんが、23時以降は周囲への配慮をお願いします。
-
洗濯物を干す場所はありますか?
-
各居室に干してください。無料のガス乾燥機がありますので、ご自由にお使いください。
-
楽器の演奏はできますか?
-
お昼間のみ。音や振動には気を付けてください。
-
友人・家族の訪問は可能ですか?
-
午前9時から午後11時まで可能です。(午後11時以降は宿泊とみなされます。)
-
友人・家族の宿泊は可能ですか?
-
原則可能です。ただし、2人以上での入居は認めていませんので常識の範囲内でお願いします。入居目的と疑われる場合は宿泊不可とさせていただきます。
-
現在空室でない部屋の予約はできますか?
-
予約はできません。ただし、ご希望をお伺いし空室がでましたらご連絡させていただくことが可能です。
-
共益費って、何につかわれるのですか?
-
電気・ガス・水道・インターネット接続料・消耗品・共用部分の清掃代などです。
-
入居する時の初期費用はどれくらいかかりますか?
-
敷金、家賃、共益費、管理会社への事務手数料、賃貸保証会社への保証料、保険会社への住宅保険料などが必要です。
-
再契約(契約の更新)はできますか?
-
貸主・借主合意のもと、再契約が可能です。
-
再契約時に事務手数料はかかりますか?
-
2回目以降の再契約には、事務手数料として家賃の0.55ヶ月分(税込)がかかります。
-
現地の見学をしないで申込みをすることはできますか?
-
条件によってはオンライン内覧いただくことにより可能です。
-
契約は何処で行いますか?
-
管理会社である株式会社学生ハウジングの事務所までお越しいただくことになります。»所在地地図
-
退去の通知はいつまでにしたらいいですか?
-
2ヵ月前までに通知が必要です。
